宿泊予約
レストラン予約
東京都市町村職員共済組合ページ
×
×
交通付きプラン
新規会員登録
予約確認・変更・キャンセル
TOP
ご宿泊
+
ご宿泊TOP
客室のご案内
宿泊プラン
ぬくもり朝ごはん
客室設備・サービス
よくあるご質問
レストラン
+
レストランTOP
朝食
ランチ
ティータイム
ディナー
テイクアウト
個室のご案内
よくあるご質問
ウエディング
+
ウエディングTOP
ウエディングフェア
プラン
挙式
披露宴会場
料理
ウエディングアイテム
ウエディングレポート
よくあるご質問
宴会・会議
+
宴会・会議TOP
宴会場一覧
プラン
よくあるご質問
イベント
交通・アクセス
周辺観光案内
お問い合わせ・予約
+
ご宿泊
レストラン
ウエディング資料請求
ウエディングご来館予約
宴会・会議
イベント
One Harmony(会員プログラム)
東京都市町村職員共済組合
その他のお問い合わせ
ホテル情報
+
ホテルガイドTOP
ホテル概要
フロアガイド
宿泊約款
宿泊利用規則
English
フォトギャラリー
COMPASS
プレスリリース
サイトポリシー
プライバシーポリシー
特定商取引法に基づく表記
採用情報
One Harmony
SDGs
サイトマップ
ご宿泊
レストラン
ウエディング
宴会・会議
イベント
交通・アクセス
周辺観光案内
TOP
ホテル情報
フロアガイド
ホテルガイド
HOTEL GUIDE
フロアガイド
フロアガイド
施設
11F~7F
客室
6F
フルリール
グレーヌ
ローズ ヴィオラ リリー
写場
客室
4F
宴会場
マグノリアI
マグノリアII
クリスタル
アメジスト
エメラルド
雪花月
3F
宴会場
アトランティックI
アトランティックII
コンチネンタル
トパーズI
トパーズII
2F
ウエディングサロン
ビューティーサロン
ドレスショップ
1F
ロビー
フロント、クローク
オールデイダイニング紗灯
ビジネスセンター
ランドリー
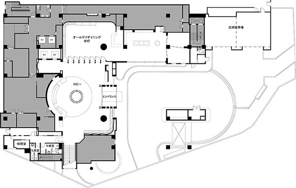
フロアマップ
1F
2F
3F
4F
6F
ホテルガイドTOP
ホテル概要
フロアガイド
宿泊約款
宿泊利用規約
設備・サービス
アクセス
周辺観光案内
フォトギャラリー
SDGsに関する取り組み
よくあるご質問